3 735 000 ₽
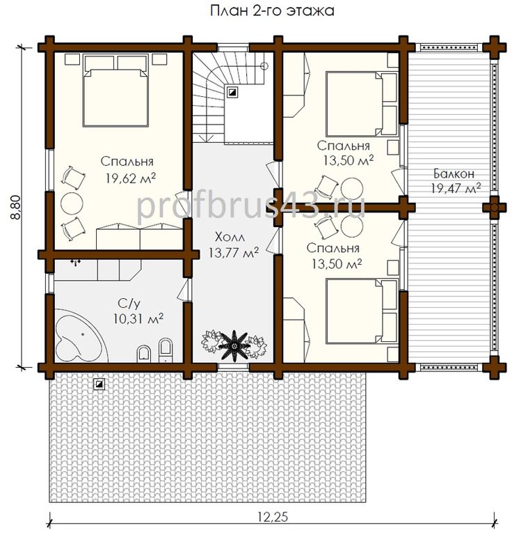
Дом спроектирован для проживания большой семьи. Удобство проживания обеспечит 5 спален (2 спальни на первом этаже и 3 на втором). На первом этаже имеется просторная гостинная и кухня. На каждом этаже располагается по санузлу. Также первый этаж предполагает наличие террасы, а второй этаж имеет большой балкон. Такой проект может подойти под строительство гостевого дома.
