3 610 500 ₽
Проект просторного одноэтажного дома из клееного бруса площадью 165 м2.
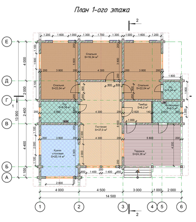
В доме расположены:
3 спальных комнаты (две площадью по 22,04 м2 и одна площадью 16,34 м2)
кухня-столовая (20,14 м2)
просторная гостиная площадью 37,0 м2
2 санузла (площадью 8,36 м2 и 3,24 м2)
котельная
тамбур
уютная и просторная терраса 24,36 м2 для семеных посиделок на свежем воздухе.
