## Описание готового проекта каркасного дома в стиле Классик двухэтажного
### Общая информация
Представляем вам проект роскошного каркасного дома в стиле Классик, охватывающий два этажа и общей площадью 208 м2. Этот дом сочетает в себе элегантность классического дизайна с современными удобствами, создавая пространство роскоши и комфорта для вашей семьи.
### Планировка
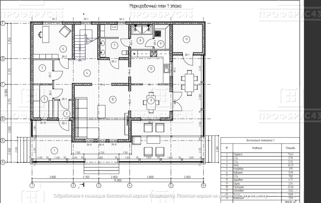
На первом этаже дома расположены следующие помещения:
- Просторная терраса 71,43 м2 - идеальное место для отдыха и развлечений на свежем воздухе
- Два санузла: 2,76 м2 и 5,33 м2 - удобство и функциональность
- Холл 24,13 м2 - пространство для встречи гостей
- Кладовая 3,91 м2 - организованное пространство для хранения
- Кабинет 11,19 м2 - уютное рабочее пространство
- Душевая 4,71 м2 и сауна 3,24 м2 - зона для релаксации и ухода за собой
- Гостиная 25,3 м2, столовая 11,02 м2, кухня 11,08 м2 - функциональные зоны для общения и приема пищи
- Котельная 7,09 м2 - обеспечение комфортного отопления дома
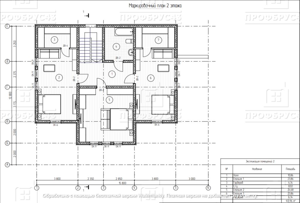
На втором этаже размещены:
- Холл 10,86 м2 - дополнительное пространство для организации
- Три просторные спальни: 23,86 м2, 24,68 м2, 23,86 м2 - уютные комнаты для отдыха
- Две гардеробные: 6,34 м2 каждая - организованное пространство для хранения одежды
- Два санузла: 8,02 м2 и 8,02 м2 - удобство и комфорт для жильцов
### Конструкция и материалы
Силовой каркас производится из сухой калиброванной антисептированной доски в заводских условиях, обеспечивая высокую прочность и долговечность конструкции.
Этот проект дома в стиле Классик предлагает роскошное и комфортное жилье для вашей семьи, сочетая в себе элегантность и функциональность.
Поделиться