Удалить товар
Вы точно хотите удалить выбранный товар? Отменить данное действие будет невозможно.
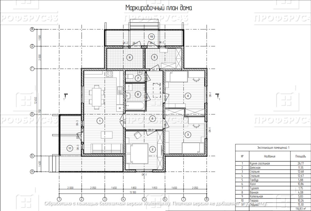
**Уникальный проект каркасного дома для вашей семьи**
**116 м2 комфорта и уюта**
Представляем вашему вниманию готовый проект одноэтажного каркасного дома площадью 116 м2, идеально подходящий для семейного проживания. В этом доме вы найдете все необходимое для комфортной жизни:
* Кухня-гостиная 26,17 м2 - центр дома, где вы можете готовить, есть и общаться с семьей
* Детская 11,35 м2 - уютное пространство для детей, где они могут играть, учиться и развиваться
* Две спальни: 12,68 м2 и 12,67 м2 - места для отдыха и сна
* Тамбур 5,88 м2 - пространство для раздевания и хранения верхней одежды
* Холл 10,86 м2 - функциональное пространство для передвижения и встречи гостей
* Санузел: туалет 1,75 м2 и ванная 4,08 м2 - удобство и комфорт для жильцов
* Котельная 5,83 м2 - помещение для оборудования отопления и горячей воды
* Две террасы: 10,26 м2 и 15,3 м2 - места для отдыха и наслаждения природой
**Высокое качество и технологии**
Наш проект можно заказать на заводе в городе Киров для самостоятельной сборки или привлечь нас для строительства вашего дома. Мы производим сборные панели по технологии Prefab в заводских условиях, что обеспечивает высокое качество, точность сборки и короткие сроки монтажа
**Выберите наш проект и создайте свой уютный дом для семьи**
Посмотреть вариант готового проекта каркасного одноэтажного дома в стиле Классика, площадью 155 м2, Вы сможете перейти по ссылку в раздел Каркасный одноэтажный дом стиль Классика, 155 м2
Вы точно хотите удалить выбранный товар? Отменить данное действие будет невозможно.
Вы точно хотите удалить выбранный товар? Отменить данное действие будет невозможно.