## Описание проекта каркасного одноэтажного дома в стиле Классика площадью 155 м2
### Общая информация
Представляем вам проект просторного каркасного одноэтажного дома в стиле Классика площадью 155 м2. Этот дом сочетает в себе элегантность классического дизайна с современными удобствами, создавая уютное и функциональное пространство для вашей семьи.
### Планировка
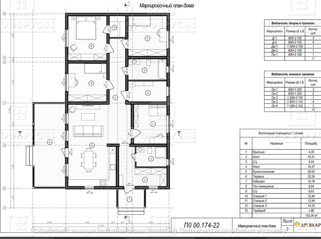
Внутри дома Классика площадью 155 м2 расположены следующие помещения:
- Крыльцо 4,35 м2 - приветственное пространство перед входом
- Холл 10,31 м2 - уютное пространство для встречи гостей
- Санузел 5,04 м2 - удобное место для гигиенических процедур
- Просторная кухня-гостиная 29,62 м2 - центральное место для семейных посиделок
- Второй холл 16,57 м2 - дополнительное пространство для организации
- Терраса 22,59 м2 - уютное место для отдыха на свежем воздухе
- Кабинет 10,78 м2 - удобное рабочее пространство
- Техническое помещение 6,64 м2 - функциональное пространство для хранения
- Второй санузел 6,63 м2 - дополнительное удобство для жильцов
- Три просторные спальни: 12,4 м2, 12,94 м2, 14,33 м2 - уютные комнаты для отдыха
- Гардеробная 2,86 м2 - организованное пространство для хранения одежды
### Преимущества
Этот проект каркасного дома в стиле Классика предлагает:
- Просторную и функциональную планировку
- Элегантный и уютный дизайн в классическом стиле
- Разнообразие помещений для комфортного проживания
- Удобство и функциональность каждого помещения
- Возможность создания уютного и стильного жилья для вашей семьи
Дом в стиле Классика - это идеальное решение для тех, кто ценит традиционный дизайн, комфорт и функциональность в каждой детали.
Поделиться