5 225 000 ₽
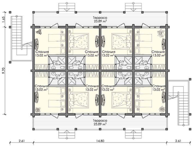
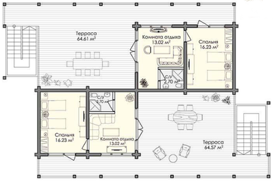
Проект трехэтажной гостиницы с террасой на крыше.
- Общая площадь 550 м2 (в том числе балконы и террасы - 235 м2);
- Размеры по осям 14,8х9,7 метров;
- Количество номеров - 20, санузлов - 18;
- Площадь номеров на первом и втором этажах - 16 м2, площадь номеров на третьем этаже - 32 м2 плюс терраса 64 м2.
Удалить товар
Вы точно хотите удалить выбранный товар? Отменить данное действие будет невозможно.
