5 670 000 ₽
Проект двухэтажной гостиницы из клееного бруса "Кабардинка". Проект был разработан для строительства в Краснодарском крае для размещения отдыхающих на побережье Черного моря.
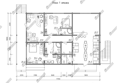
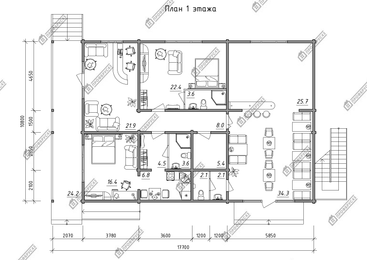
Проект гостиницы Кабардинка спроектирован в 2 этажа.
- Общая площадь 335 м2;
- Размеры по осям 17,7х13,2 метров;
- Количество номеров - 8, санузлов - 10;
- Площадь одного номера - от 25 м2, плюс балкон 6,3 м2.
На первом этаже гостницы из клееного бруса Кабардинка размещено 2 гостевых номера (один площадью 26м2 плюс, второй площадью 31,3 м2 со своей кухней), общая кухня-столовая общей площадью 60 м2, помещение для отдыха гостей пощадью 21,9 м2
Удалить товар
Вы точно хотите удалить выбранный товар? Отменить данное действие будет невозможно.
