3 895 000 ₽
В проекте двухатажной гостиницы "Архыз" из клееного профилированного бруса представлено:
- Общая площадь 267 м2 (в том числе террасы - 32,8 м2);
- Размеры по осям 12,2х13,5 метров;
- Количество номеров - 10, санузлов - 10;
- Площадь одного номера - от 16 м2.
- Отдельно предусмотрено тех. помещение для персонала, ресепшн, холл, общие коридоры на обоих этажах с выходами из номеров.
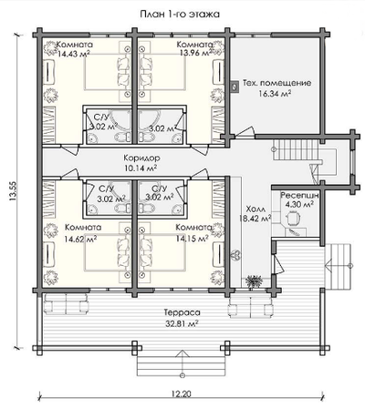
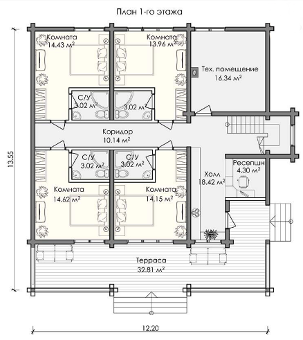
На первом этаже расположено:
- достаточно просторное техническое помещение площадью 16,34 м2;
- пространство под зону ресепш площадью 4,3м2
- зона холл для прибывающих гостей 18,42 м2
- 4 просторных номера с санузлами общей площадью от 16 м2
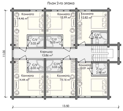
На втором этаже насположены 6 номеров с санузлами общей площадью от 16 м2.
Удалить товар
Вы точно хотите удалить выбранный товар? Отменить данное действие будет невозможно.
