1 855 000 ₽
Вашему вниманию представлен двухэтажный дом в стиле фахверк площадью 115 м2.
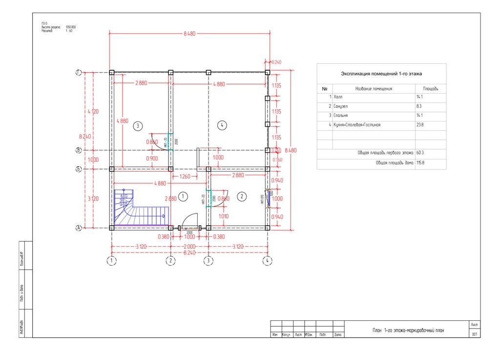
На первом этаже размещено:
кухня-столовая-гостиная площадью 23,8 м2,
спальная комната площадью 14,1 м2,
санузел площадью 8,3 м2,
просторный хол площадью 14,1 м2.
При желании можно не устранивать спальное поемение и тогда получится свободное пространство гостиной-столовой-кухни площадью 46,2 м2.
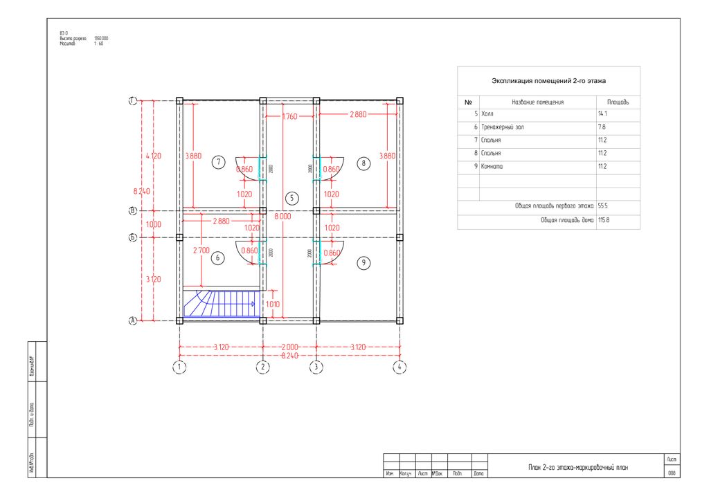
На втором этаже размещено:
3 спальных комнаты комнаты площадью по 11,2 м2.
тренажерный зал площадью 7,8 м2
просторный холл площадью 14,1 м2
Таким образом данный проект дома может подойти семье в количестве 4-8 человек.
Удалить товар
Вы точно хотите удалить выбранный товар? Отменить данное действие будет невозможно.
