Проект двухэтажного фахверкового дома площадью 149 м² представляет собой современное жилое пространство, идеально подходящее для семьи из 4-6 человек. Этот дом отличается характерной архитектурой в стиле фахверк, которая сочетает в себе элементы традиционного и современного дизайна.
Общая информация о проекте
- Площадь 149 м²
- Этажность: 2 этажа
- Спальни: 3 (одна на первом этаже и две на втором)
- Особенность: дом со вторым светом, что создает ощущение простора и обеспечивает хорошее естественное освещение.
На первом этаже располагаются следующие помещения:
- Кухня-столовая-гостиная: 35 м².
- Спальня: 15 м².
- Прихожая: 8 м².
- Санузел: 8 м².
- Дополнительный санузел: 2 м².
- Техническое помещение: 6 м².
- Коридор: 2 м².
- Сауна: 7 м².
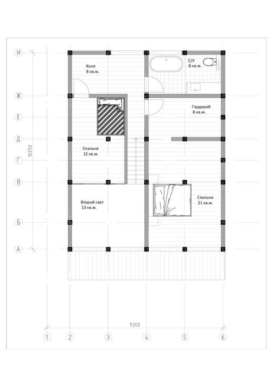
На втором этаже находятся:
- Холл: 8 м².
- Спальня: 12 м².
- Спальня: 21 м².
- Гардероб: 8 м².
- Санузел: 8 м².
- Второй свет: 13 м².
Информация о производстве фахверковых домов по ссылке
Удалить товар
Вы точно хотите удалить выбранный товар? Отменить данное действие будет невозможно.
