2 598 500 ₽
Представлен готовый проект стильного и современного дома в стиле фахверк с плоской кровлей.
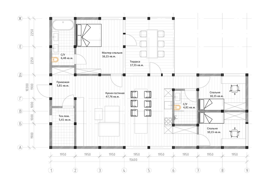
Один этаж.
Площадь 107 м2.
Размер застройки 15,6 метров на 10,3 метров.
Перед входом в дом расположена терраса площадью 17,55м2.
В доме расположены 3 спальных комнаты (одна из них - это мастер-спальная со своим санузлом).
Просторная кухня - гостиная площадью 47,76 м2 разместит большое количество гостей.
