2 365 500 ₽
Проект небольшого двухэтажного дома из клееного дома с 4-мя спальнями.
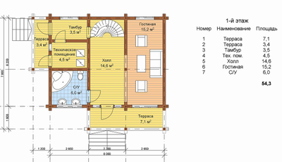
На первом этаже расположено: 2 небольшие террасы, кухня-гостиная, санузел, техническое помещение, тамбур.
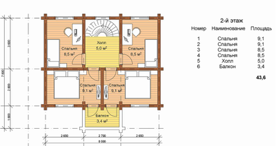
На втором этаже расположены 4 спальных комнаты, балкон.
При желании можно комнаты объеденить и полить большую площадь.
