3 735 000 ₽
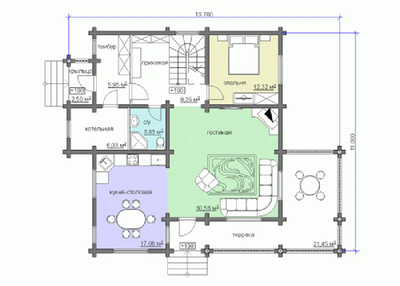
Проект двухэтажного дома со вторым светом площадью 183 м2.
На первом этаже раположена большая гостиная площадью 30 м2, кухня-столовая 17 м2, спальня 12 м2, котельная, санузел, тамбур, прихожая, просторная терраса площадью 21 м2.
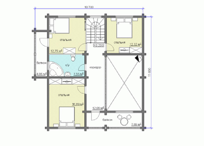
На втором этаже расположены 3 спальных комнаты, санузел, 2 балкона
Удалить товар
Вы точно хотите удалить выбранный товар? Отменить данное действие будет невозможно.
