2 697 500 ₽
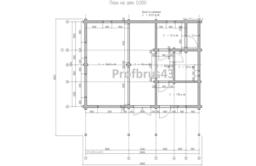
Отличный вариант дома для постоянного проживания, сочетающий в себе простоту и функциональность за вполне приемлемую стоимость!
Если у Вас есть мечта жить в своем доме, при этом огромные площади Вам не нужны, то данный домокомплект удовлетворит Ваши запросы.
Удалить товар
Вы точно хотите удалить выбранный товар? Отменить данное действие будет невозможно.
