2 435 000 ₽
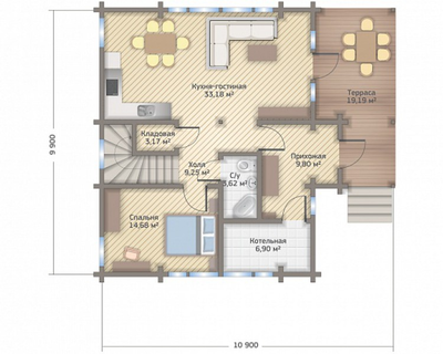
Дом из профилированного бруса общей площадью - 180 м2.
Размер дома 9,9х10,9 метра.
Этажей - 2.
На первом этаже - терраса.
1 спальня - на первом этаже, 4 спальни - на втором этаже.
Санузлов - 2, по 1 на каждом этаже.
Котельная на 1 этаже.
