2 195 000 ₽
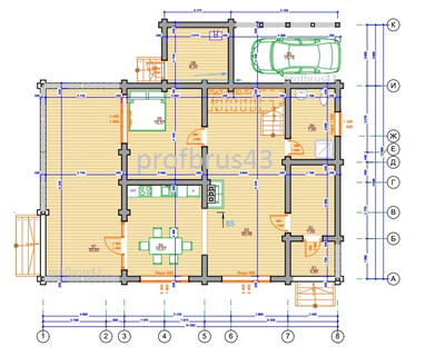
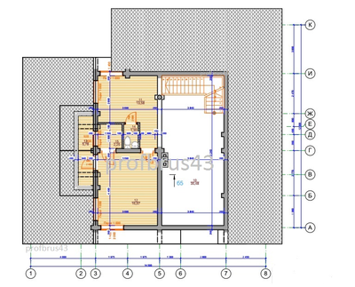
Двухэтажная дом-баня из оцилиндрованного бревна придется по вкусу любителям масштабных построек. Функциональный первый этаж с кухней-столовой, спальной комнатой, санузлом, парной и душевой. На втором этаже комната, санузел и балкон. Также у этого дома предполагается просторная терраса и парковочное место для автомобиля (под навесом).
