1 840 000 ₽
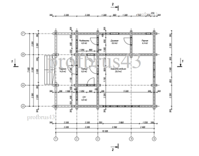
Замечательный вариант 2-этажного дома-бани объединяет в себе все функциональные возможности дома (просторная комната второго этажа позволит расположить спальные места) и бани (первый этаж предполагает полноценную баню с тамбуром, раздевалкой, душевой, парной, санузлом, комнатой отдыха). Кроме того на просторной террасе можно обустроиться в хорошую погоду и не оборудовать дополнительно беседку!
Удалить товар
Вы точно хотите удалить выбранный товар? Отменить данное действие будет невозможно.
