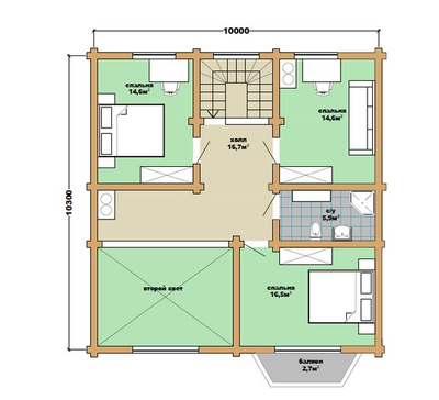
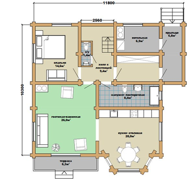
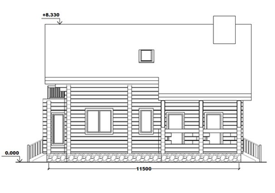
Проект представлен в оцилиндрованном бревне диаметром 240 мм.
985 000 руб. - только стеновой материал по проекту (без услуг по сборке)
1 140 000 руб. - стоимость стенового комплекта с черновым полом, комплектом крепежей (межвенцовый утеплитель, нагеля, скобы и т.д), пиломатериалом для лесов, стропильной системой и комплектом крепежей для кровли (без услуг по сборке дома)
1 840 000 руб. - стоимость строительства домокомплекта «под крышу» на готовый фундамент.
В стоимость строительства «под крышу» включено:
- рабочий проект
- стеновой домокомплект
- монтаж домокомплекта (комплект крепежей, монтаж фальшкоробок, настил чернового пола)
- монтаж кровли (утепление 200мм, монтаж стропильной системы, обрешетки, контробрешетки, паро- и гидроизоляций, настил металлочерепицы).
Доставка до места строительства и выгрузка в стоимость не включены.
Оцилиндрованное и рубленное бревно может быть различного диаметра: 180 мм до 500 мм.
Удалить товар
Вы точно хотите удалить выбранный товар? Отменить данное действие будет невозможно.
