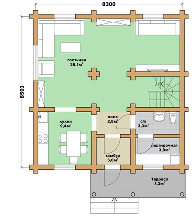
Проект представлен в оцилиндрованном бревне диаметром 240 мм.
760 000 руб. - только стеновой материал по проекту (без услуг по сборке)
895 000 руб. - стоимость стенового комплекта с черновым полом, комплектом крепежей (межвенцовый утеплитель, нагеля, скобы и т.д), пиломатериалом для лесов, стропильной системой и комплектом крепежей для кровли (без услуг по сборке дома)
1 405 000 руб. - стоимость строительства домокомплекта «под крышу» на готовый фундамент.
В стоимость строительства «под крышу» включено:
- рабочий проект
- стеновой домокомплект
- монтаж домокомплекта (комплект крепежей, монтаж фальшкоробок, настил чернового пола)
- монтаж кровли (утепление 200мм, монтаж стропильной системы, обрешетки, контробрешетки, паро- и гидроизоляций, настил металлочерепицы).
Доставка до места строительства в стоимость не включена.
Удалить товар
Вы точно хотите удалить выбранный товар? Отменить данное действие будет невозможно.
