2 905 000 ₽
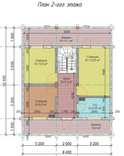
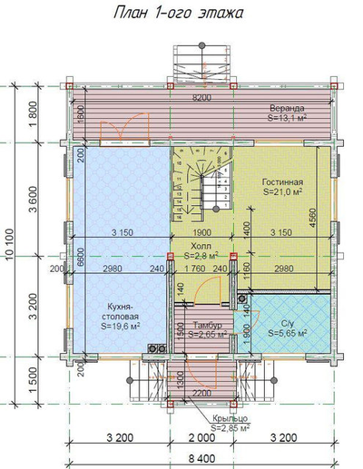
Проект компактного двухэтажного дома с двумя балконами.
На первом этаже: кухня-столовая, гостиная, санузел, веранда.
На втором этаже: 3 спальни, санузел, 2 балкона.
Уютный небольшой семейный дом.
Удалить товар
Вы точно хотите удалить выбранный товар? Отменить данное действие будет невозможно.
