Удалить товар
Вы точно хотите удалить выбранный товар? Отменить данное действие будет невозможно.
Описание проекта каркасного дома А-фрейм 7,6 x 10 м с антресолью и террасой
Общая информация
Представляем вашему вниманию проект просторного каркасного дома в стиле А-фрейм размером 7,6 на 10 метров. Этот дом сочетает в себе современный дизайн, продуманную планировку и функциональность, делая его идеальным выбором для загородной жизни.
Планировка
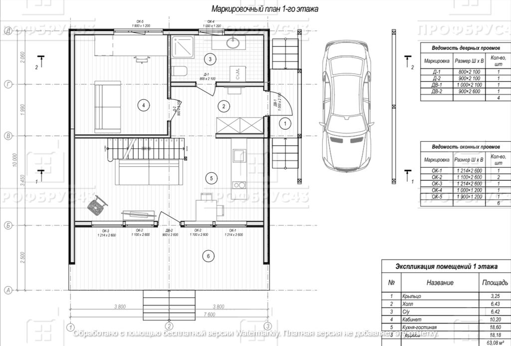
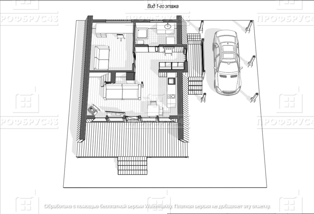
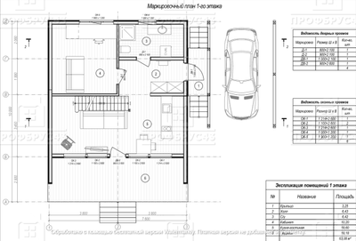
Первый этаж дома площадью 63,08 м2 включает в себя:
- Уютную террасу площадью 18,18 м2 - идеальное место для отдыха на свежем воздухе
- Просторное крыльцо 3,25 м2 - комфортный вход в дом
- Светлый холл 6,43 м2 - пространство для встречи гостей
- Функциональный санузел 6,43 м2
- Удобный кабинет 10,2 м2 - место для работы или хобби
- Просторную кухню-гостиную 18,6 м2 - сердце дома
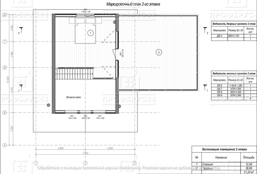
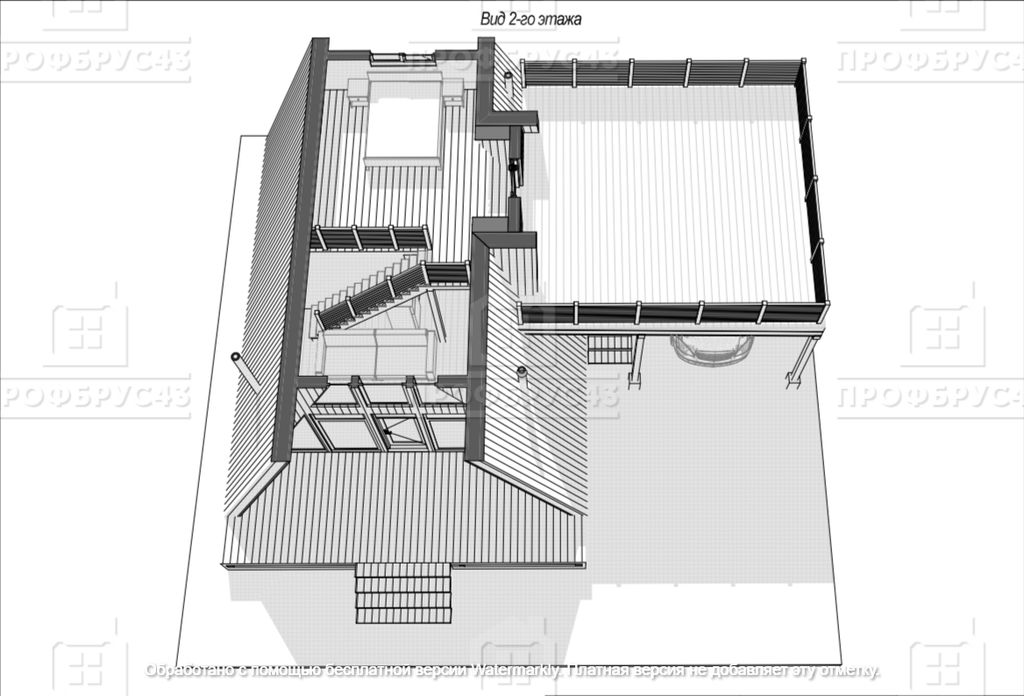
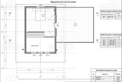
На втором этаже расположена:
- Спальня 12,56 м2 с выходом на террасу 18,18 м2
- Терраса на втором этаже выполняет функцию навеса под автомобиль
Преимущества
Этот проект каркасного дома А-фрейм обладает рядом преимуществ:
- Просторная и продуманная планировка
- Современный и стильный дизайн
- Возможность быстрого и экономичного строительства
- Отличная теплоизоляция и энергоэффективность
- Возможность индивидуальной доработки под ваши потребности
Если вы ищете комфортный и функциональный загородный дом, то этот проект A-Frame станет отличным выбором для вас!
Вы точно хотите удалить выбранный товар? Отменить данное действие будет невозможно.
Вы точно хотите удалить выбранный товар? Отменить данное действие будет невозможно.